VER EL BLOG DE PINAMAR
La Casita del Bosque
Telpin
domingo, 25 de octubre de 2020
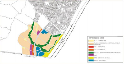
USOS DE ACUERDO AL NUEVO PLAN DIRECTOR DE CARILO
sábado, 24 de octubre de 2020
USO DEL ESPACIO PÚBLICO EXCEPTUADO DE TASAS MUNICIPALES PARA COMERCIANTES LOCALES
La llegada del verano nos invita a pensar nuevas alternativas y con una temporada extendida confirmada creemos que el siguiente paso es generar la mayor cantidad posible de ofertas al aire libre, siempre priorizando y cuidando a nuestros comerciantes.
Es por eso que el Municipio exceptuará del pago de ocupación del espacio público a los comerciantes locales que quieran ampliar su actividad allí, así como también propuestas de peatonalización en las que los comerciantes se hayan puesto de acuerdo.
Aquellos interesados pueden completar el formulario de inscripción para la utilización del espacio público. Luego de hacerlo serán contactados y asesorados.
Se recibirán propuestas hasta el 15 de Noviembre: http://pinamar.gob.ar/sutep
Más información: https://pinamar.gob.ar/excepcionespaciopublico
MÁS ENFERMERAS
El equipo del Hospital Comunitario de Pinamar cuenta, desde esta semana, con más enfermeras para mejorar la calidad de atención de los y las pacientes.
Este nuevo equipo, además, tuvo su formación en la carrera local y ahora van a trabajar codo a codo con quienes fueron sus docentes.
Las enfermeras y enfermeros han trabajado muchísimo durante esta cuarentena y tenemos por delante desafíos más grandes aún.
Más información: https://pinamar.gob.ar/nuevasenfermeras
FRANQUICIAS INMOBILIARIAS: "EN FORMA BOCHORNOSA EL INTENDENTE VETÓ LA OR...
TAXISTAS SOLIDARIOS: HACEN VIAJES GRATUITOS A MAR DEL PLATA PARA LOS DON...
HOTELES DE PINAMAR AVISAN QUE NO TRABAJARÁN AL 50%, SI LAS CASAS PARTICU...
EXPECTATIVAS POR EL PROGRAMA "PREVIAJE"
LA MUNICIPALIDAD CONDONARÁ LA TASA POR EL USO DE ESPACIO PÚBLICO Y HABRÁ...
ANTE LOS RUMORES, ACLARAN QUE SÍ PERMITIRÁN CUATRIS Y MOTOS EN LA TEMPORADA
Carilo Verano 2021 con protocolos
SE HABILITÓ LA TEMPORADA DE VERANO
PRECIOS DE VERANO: AUMENTA UN 40% LOS ALQUILERES DE TEMPORADA
PROTOCOLO PARA EL VERANO: CONTROL DE TEMPERATURA, DECLARACIÓN JURADA Y ...
HOTELEROS CONFORMES CON LOS ANUNCIOS DE PROVINCIA
PROVINCIA ANUNCIÓ 5 HOSPITALES MODULARES PARA LA TEMPORADA
domingo, 18 de octubre de 2020
sábado, 17 de octubre de 2020
SEGUN MELCONIAN LA ECONOMIA ESTA "PARALIZADA" Y EL GOBIERNO TENDRA QUE DEVALUAR M{AS RAPIDO EL DOLAR PORQUE LA BRECHA CAMBIARIA ES "INSOSTENIBLE"
El economista aconsejò al gobierno no insistir con el argumento de que el tipo de cambio blue no afecta los precios y se mostrò escéptico sobre hasta cuànto podría contribuir un acuerdo con el FMI
17 de Octubre de 2020
El consultor y economista Carlos Melconian dijo hoy que el problema del dólar excede la cuestión de si a 80 pesos es competitivo o si a 170 o màs pesos es muy caro. Que haya brecha cambiaria no es algo nuevo, señaló al programa “Sábado Tempranísimo”, de radio Mitre. “El problema es que no aprendemos; si miramos los últimos 70 años, menos de la mitad fueron períodos de control de cambios; cuando las brechas son de 30/35% estamos en la anormalidad, pero hay vida”. En cambio, explicó, con brechas de 70, 90 o más del 100% “no hay vida”.
La brecha cambiaria depende de cuánto dinero “tira” el gobierno a la calle, explicó. Después, para que la gente se quede en pesos hay que pagar altas tasas de interés, lo que mata el crédito a la producción y genera toda una serie de problemas. “Una vez más estamos enredados en un rejunte de cosas, sin articulación alguna y donde se dice con autoridad hoy lo contrario de lo que dijo con autoridad una semana atrás”, dijo Melconian.
Situaciones como la actual, prosiguió, se pueden gestionar con una “mirada de fondo” o “corriendo detrás de los acontecimientos”, como hace el gobierno. “El problema no es la falta de competitividad; no digan más que el dólar a 80 es buen precio”, aconsejó, en referencia a recientes declaraciones del ministro de Economía, Martín Guzmán. El problema de fondo, señaló, es un “desaguisado fiscal”, que se sumó a problemas que venían de antes, y sobre ese cuadro de situación golpeó la pandemia.
El economista consideró “insostenible” la brecha actual, cercana al 120%. El peso, señaló, de hecho se viene devaluando, incluso a un ritmo algo mayor a la inflación, la cuestión –señaló- es si habrá un salto adicional. Al respecto recordó que en 2014, durante el segundo gobierno de Cristina Kirchner, el jefe de Gabinete, Jorge Capitanich, el ministro de Economía, Axel Kicillof, y el presidente del Banco Central, Juan Carlos Fábrega, intentaron “hacer tiki-tiki” e hicieron primero una devaluación de 5%, pero tuvieron que hacer luego otra del 25%.
ACUERDO PARA EL INICIO DE LA TEMPORADA DE VERANO EN LA COSTA, LA FECHA EN LA QUE EMPEZARIA Y LOS PROTOCOLOS QUE SE APLICARAN
Además, las autoridades bonaerenses permitirían que unas semanas antes los propietarios no residentes puedan ir a sus casas de descanso para acondicionarlas de cara a las vacaciones
17 de Octubre de 2020
ias semanas de reuniones y debates en torno a este tema, el Gobierno de la provincia de Buenos Aires llegó a un acuerdo con los intendentes de varios municipios para dar comienzo a la próxima temporada de verano en la Costa Atlántica, aunque bajo protocolos específicos para evitar la propagación del coronavirus.
Si bien la gran mayoría de los hoteles de todo el país ya se adaptó a las nuevas circunstancias para poder recibir a los visitantes con los cuidados necesarios en el marco de la pandemia, las autoridades locales establecieron una serie de normas que deberán seguir tanto los establecimientos comerciales como los turistas.
Los últimos detalles del asunto fueron ultimados durante una charla virtual encabezada por la vicegobernadora Verónica Magario, de la que participaron también el jefe de Gabinete provincial, Carlos Bianco; los ministros de Producción, Ciencia e Innovación Tecnológica, Augusto Costa, y de Gobierno, Teresa García; el viceministro de Salud, Nicolás Kreplak; y los mandatarios de todos los partidos bonaerenses involucrados.
Según precisaron a Infobae fuentes cercanas a las negociaciones, ya estaría prácticamente definido que la fecha en la que comenzará la temporada será el 1° de diciembre de este año, ya que la administración de Axel Kicillof busca que el período de vacaciones sea “extendido” para evitar aglomeramientos de personas.
Con este objetivo en mente, se analizan además diferentes métodos para controlar el ingreso de la gente a los municipios, como una aplicación a través de la cual los turistas deberán solicitar permiso antes de viajar, la implementación de turnos para circular por las rutas y pautas de distanciamiento en los balnearios, entre otras medidas.
En el Gobierno bonaerense destacan la importancia de las pruebas piloto que hubo recientemente en varias zonas turísticas de Buenos Aires, como los registros en la web de los propietarios en Villa Gesell, Mar Chiquita y el Partido de la Costa o las visitas por 72 horas en varios lugares para controlar el estado de las viviendas de descanso.
VACACIONES EN PANDEMIA: FIN DEL MISTERIO EL GOBERNADOR AXEL KICILLOF LE PUSO FECHA AL INICIO DE LA TEMPORADA DE VERANO EN LA COSTA ATLANTICA
El gobierno bonaerense acordó con los intendentes de las ciudades turísticas que la temporada en la Costa Atlántica y las sierras comenzará el 1 ° de diciembre y que a partir del 1 ° de noviembre podrán ingresar a esos distritos los propietarios de viviendas, hoteles u otras propiedades para acondicionarlas y prepararlas para el veraneo.
El periodo de vacaciones estivales 2020/2021 se extenderá hasta el Domingo de Pascuas , que el año próximo se celebra el 4 de abril. En poco más de dos semanas, los bonaerenses no residentes en localidades de la Costa Atlántica, pero que tienen inmuebles temporarios podrán viajar hacia esos destinos.
De esta manera, se descomprime un foco de conflicto que la semana pasada incluyó piquetes y protestas en los accesos a localidades de la Costa, porque no permitieron la entrada a los dueños de casas de temporada.
Estas definiciones se acordaron en una reunión que el Jefe de Gabinete provincial, Carlos Bianco y el ministro de Producción, Augusto Costa tuvieron por zoom con los intendentes de los municipios que ofrecen servicios turísticos en Buenos Aires.
Aunque aún faltan definir detalles, esas fechas están acordadas con los funcionarios provinciales y todos los detalles de la temporada 2020/2021 los informará Axel Kicillof el lunes, según confirmaron fuentes oficiales a Clarín.
Como anticipó Clarín, las autoridades provinciales avanzan también en el desarrollo de una aplicación al estilo “Cuidar” que activarán todos los turistas que quieran acceder a las playas, sierras o lagunas bonaerenses. El aplicativo incluirá información detallada de cada viajante como declaración jurada.
FRANQUICIAS INMOBILIARIAS: "EN FORMA BOCHORNOSA EL INTENDENTE VETÓ LA OR...
TAXISTAS SOLIDARIOS: HACEN VIAJES GRATUITOS A MAR DEL PLATA PARA LOS DON...
HOTELES DE PINAMAR AVISAN QUE NO TRABAJARÁN AL 50%, SI LAS CASAS PARTICU...
INFORME DIARIO SOBRE COVID-19 A NIVEL LOCAL - con datos recibidos al 17 de Octubre 2020.
*Casos positivos totales: 1193.
*Casos activos: 250.
*Altas: 24.
*Casos en estudio: 62.
*Personas Fallecidas total: 20.
*Hisopados totales: 1873.
*Se recibieron :
- 6 Resultados confirmados por criterio clínico y epidemiológico.
- 10 Resultados confirmados por laboratorio.
- 24 Resultados negativos.
*Personas aisladas por contacto estrecho: 632.
👉 Más información: https://coronavirus.pinamar.gob.ar/reportes/
👉 Situación epidemiológica Provincia: https://portal-coronavirus.gba.gob.ar/sala-de-situacion
👉 Estos datos no tienen en cuenta las variables locales que sí son contempladas por el Equipo de Salud de Pinamar para la confección del reporte epidemiológico diario.
martes, 6 de octubre de 2020
MEGAPROYECTO: NUEVO PLAN DIRECTOR PARA CARILO
El nuevo Cariló. Cómo es el megaproyecto inmobiliario que se planea en 700 hectáreas de bosque el Plan Director que se debatió durante más de un año y vota el Concejo Deliberante de Pinamar fijará indicadores urbanísticos y ambientales para futuros desarrollos en las más de 700 hectáreas linderos a Parque Cariló, hoy plenas de forestación Fuente: LA NACION - Crédito: Mauro V. Rizzi
Darío Palavecino
CARILÓ.- Los más técnicos lo llaman "extensión urbana". Otros apelan a calificativos que preceden a la mención del proyecto: van desde "el nuevo", "el segundo" o, ya con menos simpatía, "el otro" Cariló. Una extensión de más de 700 hectáreas de bosque a lotear por sus propietarios originales y en preparativos de comercialización para que allí, durante las próximas décadas, se cristalice el desarrollo de hoteles, complejos multifamiliares, comercios y viviendas particulares.
El Plan Director que fijará los mecanismos y condiciones urbanísticos y ambientales que regirán esa inminente dinámica inmobiliaria entre decenas de miles de pinos y acacias estuvo más de un año en debate, tenía algunos cuestionamientos vivos pero con los votos del oficialismo -que responde al intendente local, Martín Yeza, de Juntos por el Cambio- logró aprobación esta mañana (7 a 6 sobre 14 concejales) durante la sesión ordinaria del Concejo Deliberante de Pinamar.
La futura irrupción del trazado de calles y el cemento de las edificaciones allí donde hoy solo hay árboles hasta el límite de Pinamar con Villa Gesell, desde la ruta 11 hasta el mar, disparó más de una polémica. En particular desde un sector de propietarios del balneario más cotizado de la costa atlántica y espacios políticos que desde el Concejo Deliberante resisten este cambio que el gobierno municipal acompaña.
Los responsables de proyectos aseguran que el Plan Director garantizará más espacios verdes con lotes más grandes, mayor retiro entre propiedades, corredores de bosque públicos y frente de médanos libre de construcciones00:31
Desde la Asociación Foro Amigos de Cariló, una de las seis instituciones que participan del Consejo Asesor convocado para analizar este proyecto, se dio batalla para evitar que se apruebe un Plan Director en el que advierten excesos sobre el paisaje y sus posibles consecuencias ambientales. Mencionan, por ejemplo, el riesgo de la disponibilidad de agua potable y la posibilidad que se avance con edificaciones "al estilo Miami".
"Lo que quieren hacer no es más Cariló sino algo muy distinto", dijo a LA NACION el presidente de la entidad, Eduardo Bari, que además cuestiona el apuro para que se cierre este debate. "Prometen más verde y sustentabilidad, pero proyectan 30.000 nuevas plazas y 155 hectáreas de viviendas multifamiliares", remarca.
Paisaje protegido
Las tierras en cuestión pertenecen a herederos de Carlos Guerrero, fundador de Cariló. Lo que se presentó como una "expansión natural" del actual balneario tuvo un primer paso más allá del límite sur, que marca la calle Constancia. Había una vieja demanda de fomentistas para que allí se respete la ley 12.099 que dispone la condición de "paisaje protegido" sobre Parque Cariló. Esa disputa se cerró hace dos meses, con un acuerdo entre el municipio, la Sociedad de Fomento de Cariló y Divisadero de Cariló S.A, responsable de un primer loteo de 42 hectáreas que está avanzado, con traza de calles e inminente inicio de ventas.
"El proyecto del nuevo Plan Director se vota este viernes [por hoy] y es el último paso a nivel local, porque el siguiente trámite es en Provincia", anticipó a LA NACION el presidente del Concejo Deliberante de Pinamar, Matías Yeannes.
Se dispara la demanda de argentinos que quieren radicarse en Estados Unidos
En ése ámbito se buscó definir ajustes que durante los últimos meses se analizaron a partir de reclamos y aportes de seis instituciones que son parte del Consejo Asesor convocado: la Sofocar, Fundación Cariló, Cámara de Turismo, Foro Amigos de Cariló, Asociación de Hoteles y Turismo y Centro de Agrimensores, Arquitectos e Ingenieros de Pinamar.
Si bien su resolución no es vinculante, esta coincidencia de instituciones convocadas para que fijen postura dejó advertencias para que se tomen en cuenta. "Exigimos un control cerrojo sobre el acuífero, que el nuevo desarrollo tenga propia conectividad con la ruta 11 y que no se utilice la infraestructura de servicios de Policía, Bomberos y otros del actual Cariló", detalló a LA NACION el presidente de Sofocar, Miguel Anzel.
Esta entidad, que a la fecha ocupa la secretaría del Consejo Asesor, había marcado en los orígenes de este proyecto varias cuestiones que creían riesgosas. Entre ellas, la inconveniencia que un único Plan Director unifique un Paisaje Protegido como es hoy Parque Cariló con otra localidad o desarrollo vecino.
Las primeras calles que se abrieron más allá del límite sur de Parque Cariló corresponden a Divisadero de Cariló, un loteo avanzado y en vías de comercialización. Parte de esas tierras quedaron alcanzadas bajo la figura de "Paisaje protegido".Las primeras calles que se abrieron más allá del límite sur de Parque Cariló corresponden a Divisadero de Cariló, un loteo avanzado y en vías de comercialización. Parte de esas tierras quedaron alcanzadas bajo la figura de "Paisaje protegido". Fuente: LA NACION - Crédito: Mauro V. Rizzi
Desde la Secretaría de Paisaje y Medioambiente de Pinamar, a cargo de Samanta Anguiano, contestaron favorablemente a las sugerencias incluidas en el dictamen del Consejo Asesor, que por cierto no fue unánime. "Se concuerda en la necesidad de la incorporación de un nuevo acceso desde la Ruta 11, que facilitará particularmente el desarrollo de Sector Sur", se cita en uno de los informes del municipio.
Desde la citada cartera municipal también se deja en claro que la mera aprobación del Plan Director "no genera automáticamente ningún derecho adquirido de construcción para los propietarios", sino que deberán avanzar con los trámites particularizados.
Foro Amigos de Cariló, Asociación de Hoteles y Turismo y Centro de Agrimensores, Arquitectos e Ingenieros de Pinamar aportan el perfil más crítico del dictamen del Consejo Asesor. "El plan presentado resulta contrario a los actuales paradigmas que propone el mundo respecto a la sustentabilidad", advierten.
Hablan de un emprendimiento que involucrará a unos 30.000 nuevos habitantes. "Si pasáramos por alto la envergadura del proyecto, estaríamos incurriendo en un gravísimo error ambiental", aclaran.
Plantean, por ejemplo, que el actual Cariló tiene 90% de urbanización unifamiliar y que el proyecto en discusión destina la mitad de superficie a uso multifamiliar. "Cambia para siempre la morfología de Cariló, tal como lo conocemos", dicen, y recuerdan que la ley de Paisaje Protegido "vino a poner límites a los excesos del Municipio".
Yeannes confirmó que esta semana se habían votado en el Concejo Deliberante cuatro ordenanzas "cerrojo" vinculadas a este Plan Director y que darían respuesta a algunos de aquellos planteos de las instituciones particulares. Una que busca garantizar el suministro de agua potable, otra que prevé estudios complementarios a los de impacto ambiental y una tercera que dispone un acceso individual para estos nuevos loteos, de manera de evitar tránsito de obra por el Cariló original. La cuarta incluye a un futuro loteo no contemplado en esta etapa pero que quedará alcanzado por el mismo Plan Director.
El proyecto que se debate hoyEl proyecto que se debate hoy Fuente: LA NACION - Crédito: Mauro V. Rizzi
Plan de desarrollo
Cuatro firmas que involucran a herederos de Carlos Guerrero son propietarias de estas tierras. Tres de ellas tienen proyectos de loteo para las áreas Norte, sobre ruta 11, y Sur, junto al mar. El tercer espacio pertenece a la restante empresa, sin planes todavía para ese sector de reserva.
El arquitecto Juan Alberto González Morón, coordinador técnico del grupo de propietarios involucrados en el Plan Director, aseguró a LA NACION que el trabajo es superador de lo actual, sustentable y "pone la vara más alta" para los desarrollos inmobiliarios de la zona.
Un paso a favor es que ya se avanzó en el trabajo con organismos provinciales -Dirección de Ordenamiento Urbano y Territorial (DPOUT), Organismo Provincial para el Desarrollo Sustentable (OPDS) y la Autoridad del Agua (ADA)-, que suelen revisar recién una vez aprobado el Plan Director.
Un Consejo Asesor integrado por seis instituciones civiles presentó un dictamen con cuestionamientos. Un grupo de propietarios advierte sobre el riesgo que allí surjan desarrollos "al estilo Miami"Un Consejo Asesor integrado por seis instituciones civiles presentó un dictamen con cuestionamientos. Un grupo de propietarios advierte sobre el riesgo que allí surjan desarrollos "al estilo Miami" Fuente: LA NACION - Crédito: Mauro V. Rizzi
"Lo que vamos a lograr con esta idea es recuperar la imagen del Cariló de hace 50 años", dijo sobre una presencia mayor de bosque, lotes más amplios y mayores retiros entre propiedades.
Describió un actual Cariló donde es imposible pasear por un bosque sin pisar territorio privado. Por eso destaca que en el proyecto que representa se cedieron espacios verdes que -ahora con uso público- permitirían, por ejemplo, caminar entre árboles un muy largo recorrido y llegar al mar.
Desadaptados. La falta de jardines de infantes, ¿dejará una marca en una generación?
También dejó en claro que ya no habrá construcción en primera línea de costa y aclaró que desde la playa ahora solo se verá "cielo y médano". Las construcciones estarán a más de 150 metros de la línea de ribera y los hoteles, a diferencia de Cariló actual, a unos 700 metros. Resaltó el plan de desarrollo de viviendas multifamiliares "de baja densidad". Allí se permitirán construcciones de hasta tres pisos (uno más de lo que se permitía en Parque Cariló) pero se compensará con más espacio verde, tanto parque como forestación original. Y en cuanto a áreas comerciales, serán mínimas. "No vienen a competir sino a complementar lo que tiene Parque Cariló", precisó.
La zona es un gran bosqueLa zona es un gran bosque Fuente: LA NACION - Crédito: Mauro V. Rizzi
Los planes para nuevos desarrollos tienen puntos de partida sobre superficies muy reducidas por ahora. Por eso insisten los propietarios de estas tierras que se trata de un proyecto en el que se verán grandes cambios recién en los próximos 30 a 50 años.
¿UN NUEVO CARILO?
Tras un año de debates, la Municipalidad de Pinamar aprobó la urbanización de más de 700 hectáreas cubiertas de vegetación, linderas con el Parque Cariló. En diciembre último, la presión de los vecinos había impedido su aprobación.
Los responsables de proyectos aseguran que el plan director garantizará más espacios verdes con lotes más grandes y un mayor retiro entre propiedades. Sin embargo, la Asociación Foro Amigos de Cariló, una de las seis instituciones que participan del consejo asesor convocado para analizar el plan, advierte sobre excesos contra el paisaje y mensura sus posibles consecuencias ambientales.
Si bien promete más verde y mayor sustentabilidad, el proyecto expande la capacidad de alojamiento en el lugar, al llevarla de las 5300 actuales a casi 30.000, una suba de la densidad que planteó objeciones técnicas.
La situación que hoy se presenta parece calcada de otros tantos balnearios en los que la presión inmobiliaria ha desfigurado el encanto original de muchos enclaves costeros. Estamos ante una patología que se expande peligrosamente cuando falta una planificación orientada a resguardar los valores esenciales de un lugar, dando paso a emprendimientos que cambian irreversiblemente su esencia. Es así que la gente que allí habita o que pretende conservar un sitio al resguardo del estrés urbano se ve obligada a aceptar la imposición de proyectos de infraestructura que ignoran y hasta promueven valores que no guardan relación con el entorno y que desestiman cualquier posibilidad de integrar razonable y adecuadamente los nuevos proyectos con la concepción fundadora.
El distinguido etólogo Konrad Lorenz, Premio Nobel de Medicina en 1973, solía destacar que, entre quienes deben decidir si se construirá una calle, una usina o una fábrica que destruirá para siempre la belleza de todo un amplio paisaje, las consideraciones estéticas no juegan ningún papel. Como si existiera una unanimidad de criterio en cuanto a que la belleza natural no merece sacrificio alguno de orden económico ni político. Por eso, es importante escuchar a quienes habitan el lugar y han constribuido a la creación y al mantenimiento de su esencia. Aquellos que buscan evitar que se pueda poner en riesgo su verdadero carácter, que es lo que le brinda su valor.
El Foro Amigos de Cariló, la Asociación de Hoteles y Turismo, y el Centro de Agrimensores, Arquitectos e Ingenieros de Pinamar cuestionan el proyecto. Aseguran que Cariló tiene hoy 90% de urbanización unifamiliar y que el plan en discusión destina la mitad de superficie a uso multifamiliar cambiando definitivamente la morfología actual de la tradicional localidad, declarada por ley como paisaje protegido, y agravando dos problemas sustanciales: la provisión de agua y cloacas.
![]() |
| Añadir título |
Es cierto que los lugares cambian, pero esas modificaciones deben contemplar la defensa de los valores que cada comunidad ha consagrado en armonía con su hábitat.
Quienes tienen a su cargo la administración del área deberían percibir los riesgos de incentivar emprendimientos que pueden ser agresivos con el entorno. Quizás, de un modo simplificado y si existe verdaderamente una voluntad de mantener el sentido que el sitio ha adquirido, se debería analizar si los nuevos emprendimientos fortalecen o no la emoción estética, ponderando debidamente la rentabilidad inmobiliaria. Si la respuesta es negativa, tienen la oportunidad de evitar los profundos desencantos que provocaron tantos proyectos que han transformado espacios de gran belleza natural en sitios anodinos.





















